Vorbestellung
ID Ware:
1100
Fertigungszeitraum ca: 30 Tage

Uw-value
1.85
Außen:
RAL 9016 Traffic white
Innenfarbe:
RAL 9016 Traffic white
Warenbeschreibung
Technische Eigenschaften
Typ:
Terrassentüren
Bauformen:
Zweiteiliges Hebe-Schiebe-Element, rechtsseitig
Öffnungsarten:
Gleiten
Uw-value:
1.85 W/(m²K)
Vermaßung (Breite x Höhe):
2000x2200 mm
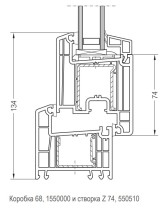
Schnittzeichnungen

Produktzertifikate
Produktzertifikate


+ 3 Fotos
Fotogallerie


+ 4 Fotos
Kundenrezensionen und Fragen

Vorbestellung
ID Ware:
1100
Hinterlassen Sie eine Bewertung
Fertigungszeitraum ca: 30 Tage
3 259 EUR
2 150.81 EUR
1. Grundparameter
Vermaßung (Breite x Höhe):
Öffnungsart:
Highlights:
Farbe außen:
Innenfarbe:
Verglasung:
2. Zubehör
Türgriff:
Andere:
3. Dienstleistungen
+ 118.76 EUR
0 Rezensionen